Coworking La Estiva
Horarios
Lunes a Viernes
C. Mayor, 6D, 22367 San Juan de Plan, Huesca, España
escueladepastoreo.com
Tour
Horarios
Lunes a Viernes
C. Mayor, 6D, 22367 San Juan de Plan, Huesca, España
escueladepastoreo.com
Tour
Horarios
Lunes a Viernes
C. Mayor, 6D, 22367 San Juan de Plan, Huesca, España
escueladepastoreo.com
INSTALACIONES
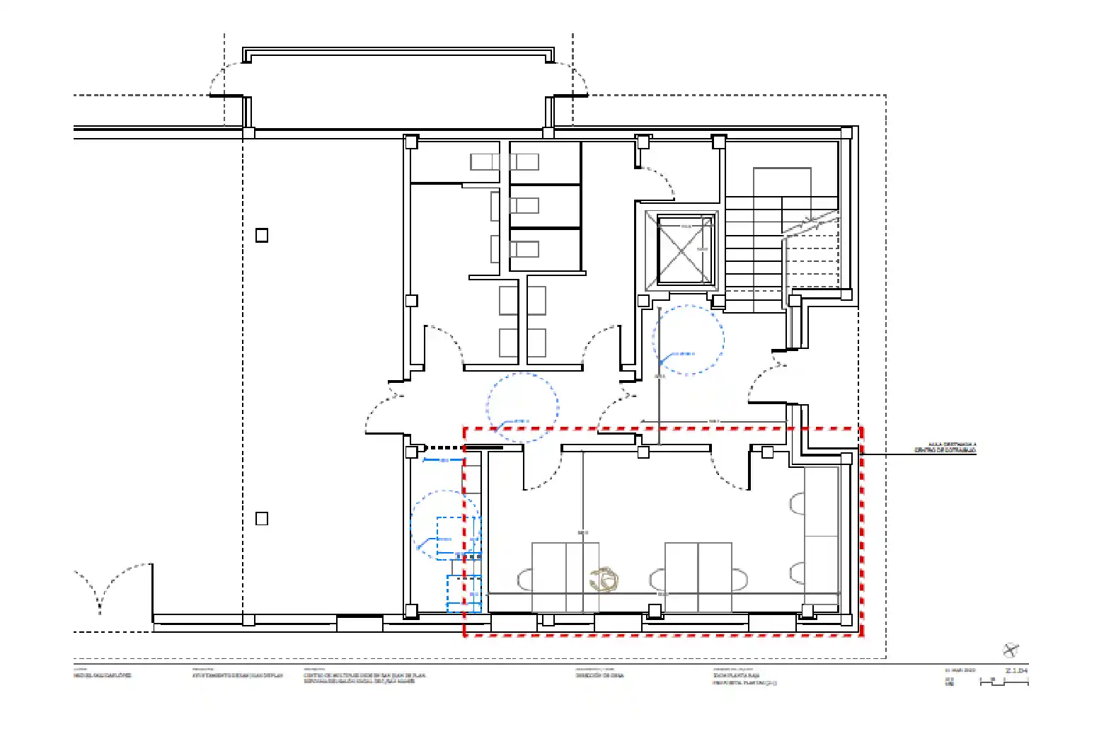
El espacio consta de 47,27 metros cuadrados, distribuidos en un espacio diáfano y polivalente destinado a oficinas y formación. El Centro dispone de un archivo de 19,64 metros cuadrados, sito en la planta baja del edificio, y de servicios higiénicos de 8,54 metros cuadrados y sala de reuniones de 47,27 metros cuadrados, sitos en la primera planta del edificio. Estos tres espacios serán de uso compartido con otras dependencias del Ayuntamiento. El Centro tiene capacidad para albergar a 10 puestos destinados a acciones formativas, 20 puestos para reuniones de trabajo, y 2 puestos para gestiones laborales personales.
El espacio consta de 47,27 metros cuadrados, distribuidos en un espacio diáfano y polivalente destinado a oficinas y formación. El Centro dispone de un archivo de 19,64 metros cuadrados, sito en la planta baja del edificio, y de servicios higiénicos de 8,54 metros cuadrados y sala de reuniones de 47,27 metros cuadrados, sitos en la primera planta del edificio. Estos tres espacios serán de uso compartido con otras dependencias del Ayuntamiento. El Centro tiene capacidad para albergar a 10 puestos destinados a acciones formativas, 20 puestos para reuniones de trabajo, y 2 puestos para gestiones laborales personales.
Tour
Horarios
Lunes a Viernes
C. Mayor, 6D, 22367 San Juan de Plan, Huesca, España
escueladepastoreo.com
Horarios
Lunes a Viernes
C. Mayor, 6D, 22367 San Juan de Plan, Huesca, España
escueladepastoreo.com
Tour
Tour
Galería






