Colaboratorio Huesca
Horarios
Lunes a Viernes
Plaza López Allué, 2, Huesca, Huesca, España
https://www.huesca.es/w/colaboratorio
Tour
Horarios
Lunes a Viernes
Plaza López Allué, 2, Huesca, Huesca, España
https://www.huesca.es/w/colaboratorio
Tour
Horarios
Lunes a Viernes
Plaza López Allué, 2, Huesca, Huesca, España
https://www.huesca.es/w/colaboratorio
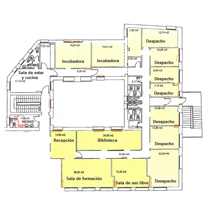
INSTALACIONES
Espacio Coworking: Cuenta con un total de 10 despachos individuales, dos dobles y uno triple. La estancia máxima es de 24 meses.
Espacio Incubadora: Cuenta con un total de 18 plazas, 8 de ellas reservadas para proyectos relacionados con el ámbito cultural en un plazo máximo de 12 meses.
Además dispone de varios espacios comunes: Espacio de recepción, sala de reuniones, sala de formación, sala con funciones de punto de encuentro o networking, sala multidisciplinaria, cocina-office y Aseos.
Espacio Coworking: Cuenta con un total de 10 despachos individuales, dos dobles y uno triple. La estancia máxima es de 24 meses.
Espacio Incubadora: Cuenta con un total de 18 plazas, 8 de ellas reservadas para proyectos relacionados con el ámbito cultural en un plazo máximo de 12 meses.
Además dispone de varios espacios comunes: Espacio de recepción, sala de reuniones, sala de formación, sala con funciones de punto de encuentro o networking, sala multidisciplinaria, cocina-office y Aseos.
Tour
Horarios
Lunes a Viernes
Plaza López Allué, 2, Huesca, Huesca, España
https://www.huesca.es/w/colaboratorio
Horarios
Lunes a Viernes
Plaza López Allué, 2, Huesca, Huesca, España
https://www.huesca.es/w/colaboratorio
Tour
Tour
Galería









