Centro de Emprendimiento Agroecológico Ainsa-Sobrarbe
Horarios
Lunes a Viernes
Tarifas
Plaza Mayor, 1, 22330 Aínsa, Huesca, España
Acciones formativas, talleres prácticos y asesoramiento en trámites como solicitud de subvenciones y otras cuestiones relacionadas con la administración, reuniones de trabajo, charlas técnicas y de asesoramiento, gestiones laborales personales.
Tour
Horarios
Lunes a Viernes
Tarifas
Plaza Mayor, 1, 22330 Aínsa, Huesca, España
INSTALACIONES
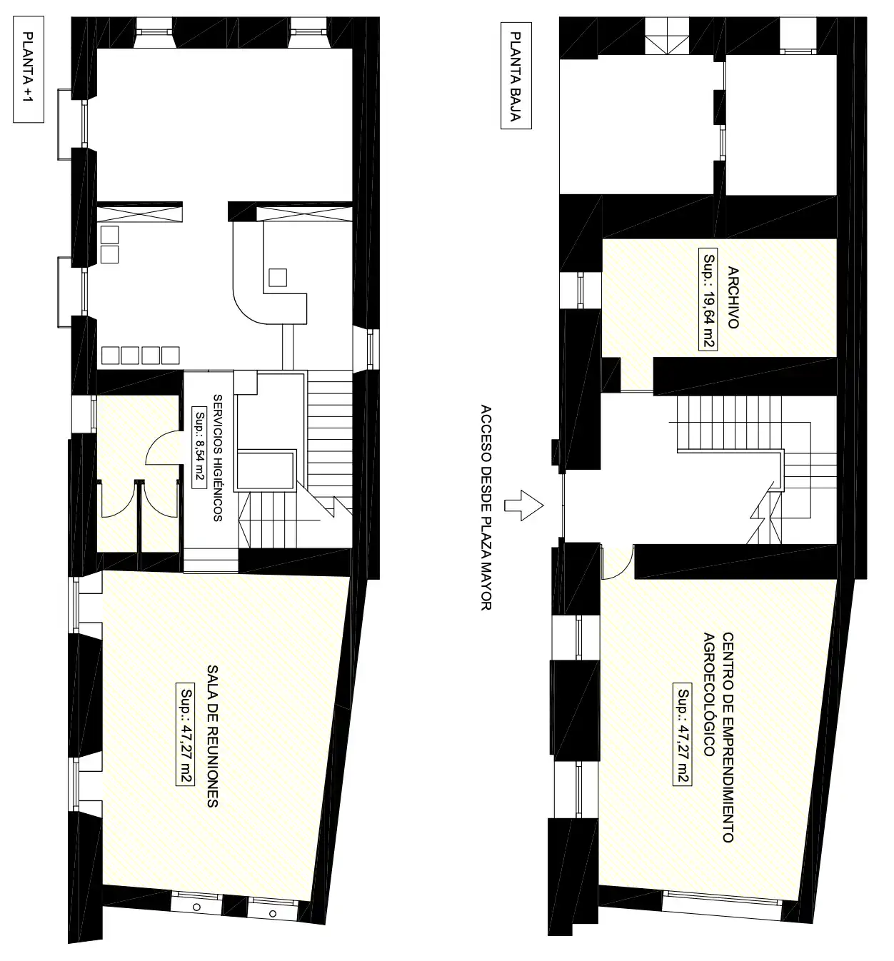
El espacio consta de 47,27 metros cuadrados, distribuidos en un espacio diáfano y polivalente destinado a oficinas y formación. El Centro dispone de un archivo de 19,64 metros cuadrados, sito en la planta baja del edificio, de servicios higiénicos de 8,54 metros cuadrados y sala de reuniones de 47,27 metros cuadrados, sitos en la primera planta del edificio. Estos tres espacios serán de uso compartido con otras dependencias del Ayuntamiento. El Centro tiene capacidad para albergar a 10 puestos destinados a acciones formativas, 20 puestos para reuniones de trabajo, y 2 puestos para gestiones laborales personales.
El espacio consta de 47,27 metros cuadrados, distribuidos en un espacio diáfano y polivalente destinado a oficinas y formación. El Centro dispone de un archivo de 19,64 metros cuadrados, sito en la planta baja del edificio, de servicios higiénicos de 8,54 metros cuadrados y sala de reuniones de 47,27 metros cuadrados, sitos en la primera planta del edificio. Estos tres espacios serán de uso compartido con otras dependencias del Ayuntamiento. El Centro tiene capacidad para albergar a 10 puestos destinados a acciones formativas, 20 puestos para reuniones de trabajo, y 2 puestos para gestiones laborales personales.
Tour
Horarios
Lunes a Viernes
Tarifas
Plaza Mayor, 1, 22330 Aínsa, Huesca, España
Tour
Horarios
Lunes a Viernes
Tarifas
Plaza Mayor, 1, 22330 Aínsa, Huesca, España
50€/mes (IVA incluido) por puesto.
50€/mes (IVA incluido) por puesto.
Horarios
Lunes a Viernes
Tarifas
Plaza Mayor, 1, 22330 Aínsa, Huesca, España
Tour
Horarios
Lunes a Viernes
Tarifas
Plaza Mayor, 1, 22330 Aínsa, Huesca, España
Tour
Horarios
Lunes a Viernes
Tarifas
Plaza Mayor, 1, 22330 Aínsa, Huesca, España
Tour
Horarios
Lunes a Viernes
Tarifas
Plaza Mayor, 1, 22330 Aínsa, Huesca, España
Tour
Horarios
Lunes a Viernes
Tarifas
Plaza Mayor, 1, 22330 Aínsa, Huesca, España




