Centro de Emprendedores de Andorra
Horarios
Lunes a Viernes
Pol. Ind. La Estación, Calle Estación del Norte, 6, Andorra, Teruel, España
Tour
Horarios
Lunes a Viernes
Pol. Ind. La Estación, Calle Estación del Norte, 6, Andorra, Teruel, España
INSTALACIONES
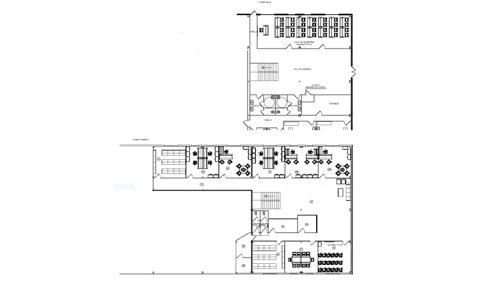
Planta baja. Zona de servicios comunes (sala de formación y baños), tres naves nido: – Nave 1: 274,03 m² – Nave 2: 322,06 m² – Nave 3: 352,03 m². Planta primera. Nueve despachos de aproximadamente 25 m² cada uno de ellos así como un espacio dedicado a office y baños. Este año, se ha incorporado un espacio de reuniones en la zona de recepción. El Centro también dispone de un aula de formación – reuniones.
Planta baja. Zona de servicios comunes (sala de formación y baños), tres naves nido: – Nave 1: 274,03 m² – Nave 2: 322,06 m² – Nave 3: 352,03 m². Planta primera. Nueve despachos de aproximadamente 25 m² cada uno de ellos así como un espacio dedicado a office y baños. Este año, se ha incorporado un espacio de reuniones en la zona de recepción. El Centro también dispone de un aula de formación – reuniones.
Tour
Horarios
Lunes a Viernes
Pol. Ind. La Estación, Calle Estación del Norte, 6, Andorra, Teruel, España
Uso gratuito para los emprendedores instalados y del cual pueden hacer uso previa solicitud (aula de formación - reuniones).
Horarios
Lunes a Viernes
Pol. Ind. La Estación, Calle Estación del Norte, 6, Andorra, Teruel, España
Tour
Tour
Galería




























